NS.ESCLUSIVA VIA ROMA

Livorno - zona Piazza Roma - Borgo Cappuccini

Rif: NS.ESCLUSIVA VIA ROMA
Condividi Linkedin Whatsapp Stampa
€ 1.100
Appartamento
82 Mq
4 Vani
Classe energetica C
2 Camere
2 Bagni
Ascensore
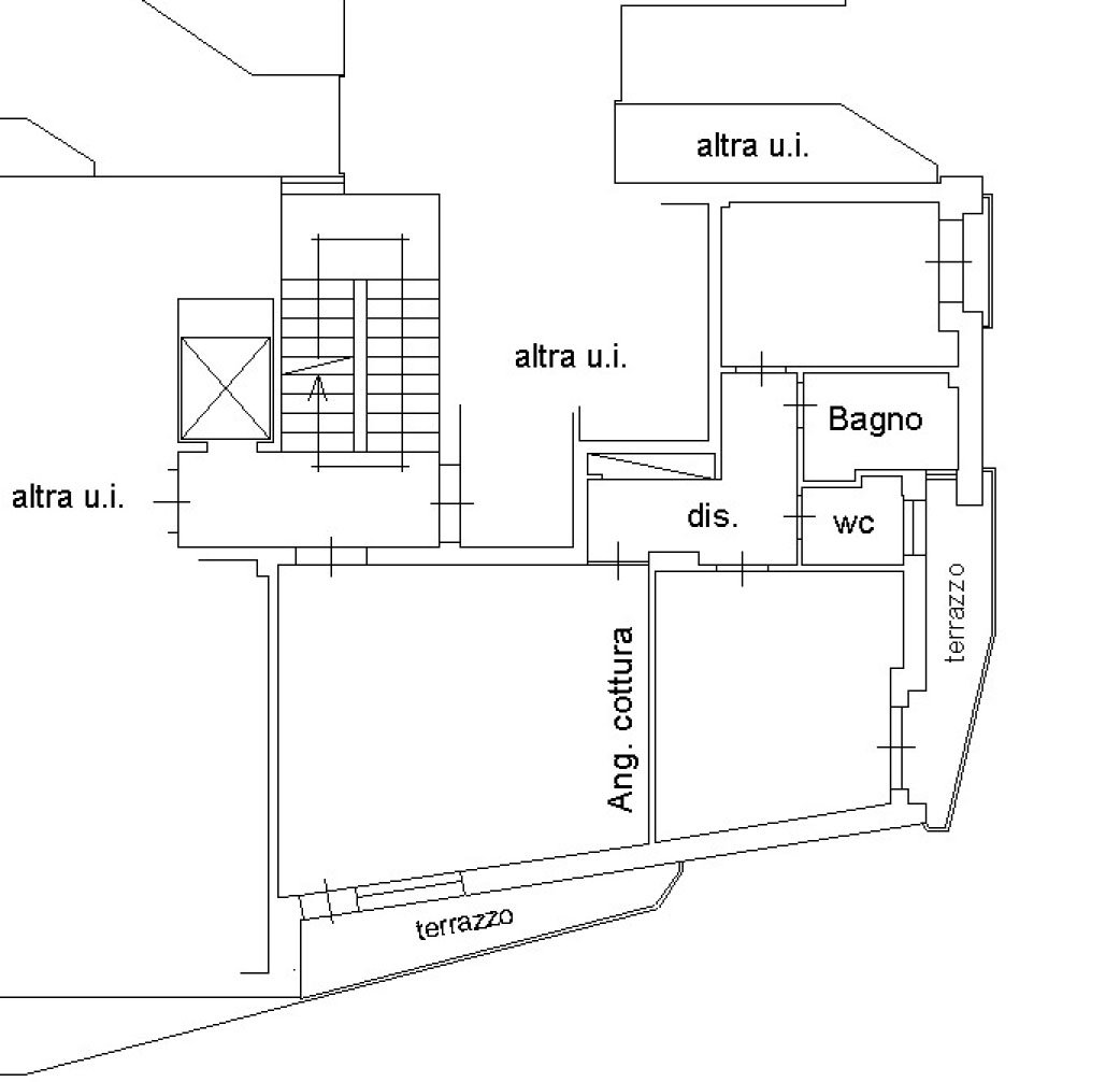
Scopri questo splendido appartamento luminosissimo, completamente ristrutturato nel 2024, situato al quinto piano di un elegante palazzo con ascensore. Con una superficie commerciale di 82 m², questo immobile offre un ampio soggiorno con angolo cottura e un affaccio su un terrazzo panoramico, perfetto per godere di momenti di relax all'aria aperta.

La zona notte è ben separata e dispone di una comoda armadiatura a muro, una camera matrimoniale con accesso a un balcone e una camera singola con balconcino, ideale per ospiti o studio. Entrambi i bagni sono finestrati, garantendo luminosità e ventilazione. L'appartamento è dotato di nuovi arredi e di un sistema di riscaldamento centralizzato con termo valvole, oltre a condizionatori caldo/freddo in ogni stanza per il massimo comfort.

Disponibile subito con contratto 4+4, richiede garanzie reddituali e una caparra di oltre 3 mensilità. Questo immobile, si trova in una posizione strategica, ben collegato ai mezzi pubblici.
Non perdere l'opportunità di vivere in un ambiente moderno e accogliente! Contattaci per maggiori informazioni e per prenotare una visita!

Dettaglio immobile

Contratto Affitto
Rif NS.ESCLUSIVA VIA ROMA
Prezzo € 1.100
Provincia Livorno
Comune Livorno
Zona Piazza Roma - Borgo Cappuccini
Indirizzo Via Roma 109
Superficie 82 mq
Vani 4
Camere 2
Bagni 2
Classe energetica C (DL 192/2005)
EPI 83.42 kwh/m2 anno
Piano 5 / 7
Riscaldamento centralizzato
Condizioni ottime condizioni
Spese condominiali € 130
Arredato si
Ascensore si
Cucina angolo cottura
Balcone si
Terrazza si

Consistenze

Descrizione Superficie Sup. comm.
Principali
Immobile - 5° piano 82 Mq 82 Mqc
Totale 82 Mqc

Planimetrie

Richiedi maggiori informazioni

Autorizzazione al trattamento dei dati personali+
Dichiaro di aver letto l'informativa sulla privacy ed accetto le condizioni d'utilizzo del servizio.
Riempi il campo con il codice riportato nell'immagine*
Codice Captcha
Chiamaci Contattaci